WORKS実 績

ベランダ増築で実現した二世帯住宅

ご実家のベランダ部分を活用し、
完全分離型の二世帯住宅へと再構成しました。

もともとの建物構成を活かしながら
住まいのあり方を見直すことから始まった今回の計画。
親世帯、子世帯とそれぞれが、無理なく暮らせる形へと整えています。

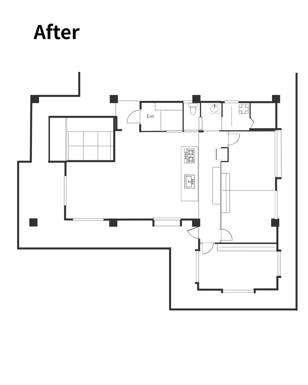
新たに計画した住まいは、キッチンを中心にリビング全体を見渡せるレイアウト。
日常の動きに自然と視線が通る、シンプルで使いやすい空間としました。

ベランダ部分を活用した増築により、
限られた条件の中で暮らしに合った選択肢を見つけて
この住まいがかたちになりました。

renovation point

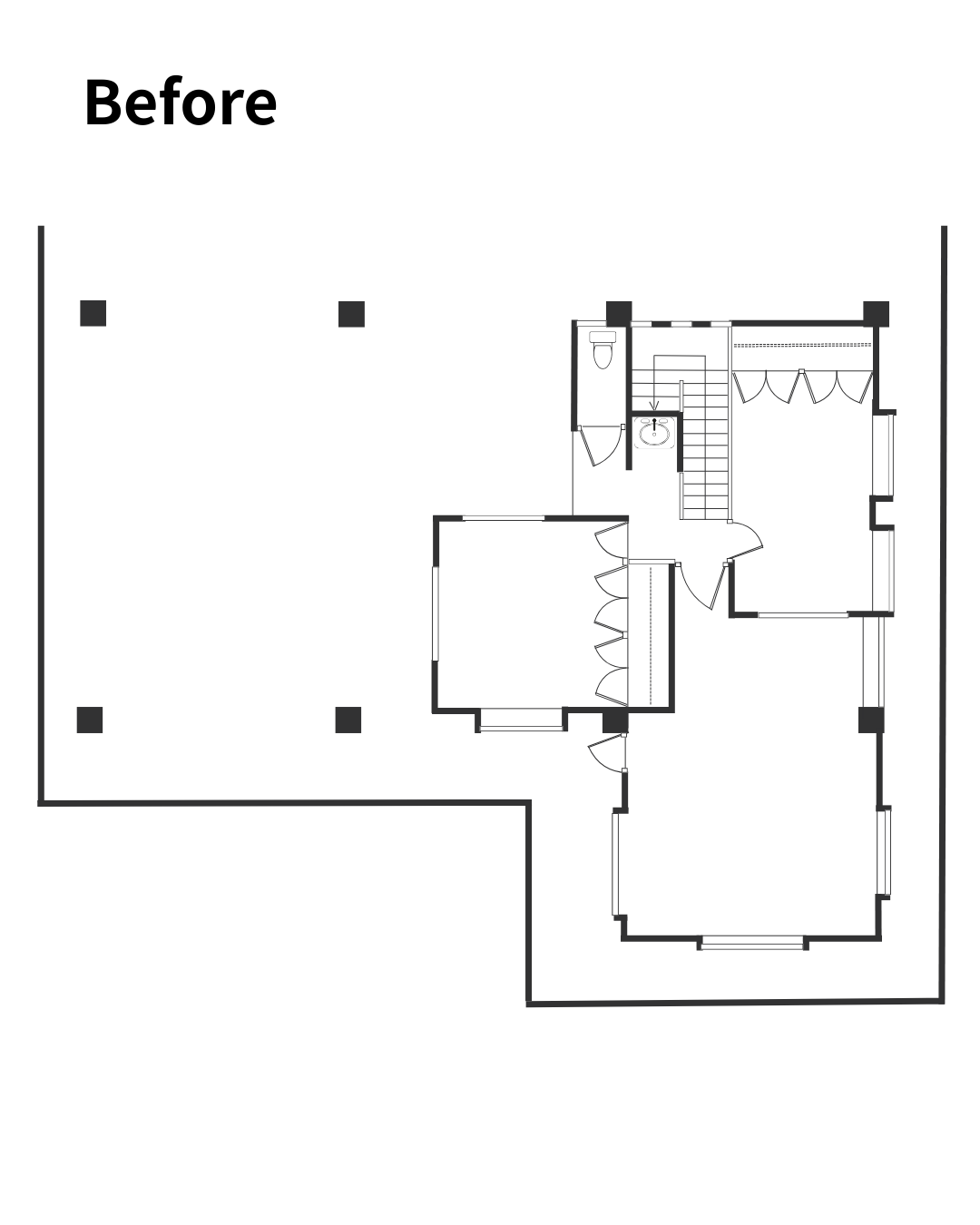
今回の計画の大きな特徴は、
ベランダ部分を活用した増築であること。
写真は、同じ位置から撮影した工事前と工事後です。
「ベランダに増築したい」というご相談は多くいただきますが、

実際には建物の構造や法規条件により、
実現できるかどうかはケースごとに異なります。
既存建物の条件を丁寧に整理しながら、計画を進めました。

築年数 28年
施工面積 109.63㎡